Geberit ProPlanner Programsko orodje za načrtovanje za vodovodarje
Preprosto, natančno in hitro načrtovanje
Geberit ProPlanner je posebej prilagojen za potrebe inštalaterjev, ki samostojno načrtujejo sanitarne inštalacije.
Načrtovalni moduli zajemajo različne sanitarne tehnologije, od načrtovanja inštalacijskih sistemov do dimenzioniranja cevi in hidravličnih izračunov.
Ko namestite Geberit ProPlanner – ob upoštevanju zahtev sistema – in se prvič registrirate, boste prejeli licenčni ključ, ki vam omogoča uporabo modula Inštalacijski sistemi.
Za uporabo modulov za shematsko načrtovanje cevnih sistemov, podrobno 3D načrtovanje, strešno odvodnjavanje in predizdelavo odpadnih vod je potrebna programska usposobljenost. Ko se usposabljanja udeležite, boste prejeli licenco. Če vas to usposabljanje zanima, nas kontaktirajte.

ZAKAJ IZBRATI GEBERIT PROPLANNER?
Enostavno načrtovanje
Ustvarjanje shematskih risb vam omogoča popolno dimenzioniranje cevi in seznam materialov za vaš projekt.
Natančni izračuni
Zanesljivi izračuni se samodejno izvajajo na podlagi strokovnega znanja Geberit.
Enostaven za uporabo
Uporabniški vmesnik je intuitiven in enostaven za učenje.
Hitro ustvarjanje
Risbe je mogoče ustvariti hitro, poročila pa se generirajo z enim klikom miške.
Moduli za projektiranje
Inštalacijski sistemi
Modul omogoča hitro, enostavno in natančno načrtovanje ter modeliranje inštalacijskih sistemov.
Funkcije:
- Načrtovanje inštalacijskih sistemov
- Izračun v skladu z Geberit smernicami in predpisi
- Najnovejše posodobitve predpisov in integrirani Geberitovi izdelki
- Samodejni izpis materialnih, ponudbenih in rezalnih seznamov
- Samodejni izpis tlorisa, pogleda od spredaj in montažnih risb
- Funkcija izvoza za podrobno 3D načrtovanje
- CAD izvozna vmesnika (Autodesk® RealDWG®)

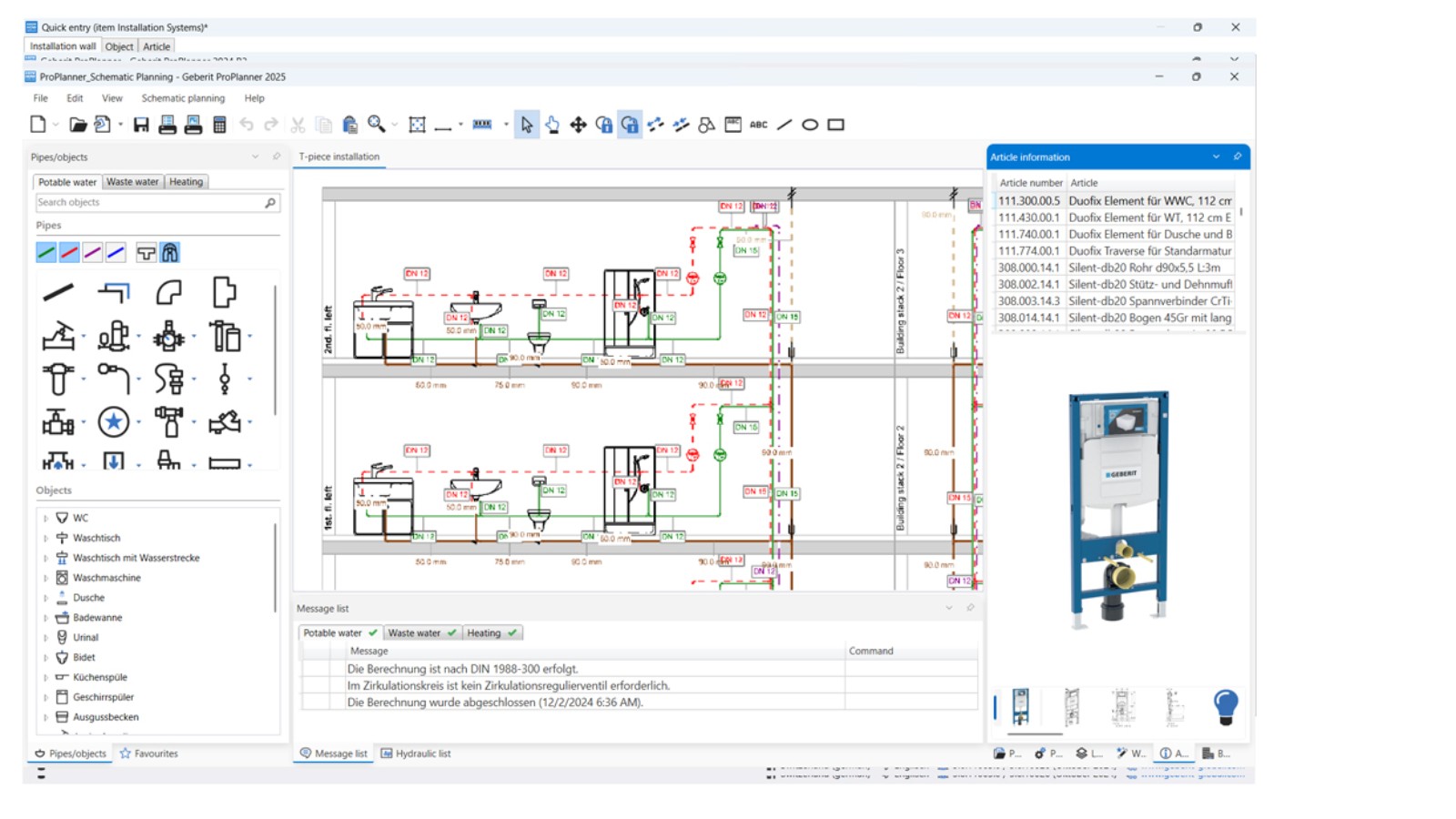
Shematsko projektiranje
Modul omogoča načrtovanje cevnih sistemov na podlagi podrobnih risb.
Funkcije:
- Načrtovanje sistemov za pitno vodo in odvodnjavanje
- Izračun v skladu z nacionalnimi standardi
- Najnovejše posodobitve predpisov in integrirani Geberit izdelki
- Samodejni izpis materialnih, hidravličnih in ponudbenih seznamov
- Samodejni izpis shematskih risb
- CAD izvoz vmesnik (Autodesk® RealDWG®)

Podrobno 3D načrtovanje
Modul omogoča celovito 3D modeliranje sanitarnih naprav. Programska oprema zagotavlja pravilno zasnovo.
Funkcije:
- Načrtovanje inštalacijskih in odvodnih sistemov
- Načrtovanje je možno v tlorisu, pogledu od spredaj in 3D
- Izračun v skladu s smernicami in predpisi Geberit
- Najnovejši predpisi, standardi in integrirani Geberit izdelki
- Samodejni izpis materialnih, ponudbenih in rezalnih seznamov
- Samodejni izpis tlorisa, pogleda od spredaj, 3D in inštalacijskih risb
- CAD uvoz in izvoz (Autodesk® RealDWG®)

Odvodnjavanje strehe z Geberit Pluvia
Modul omogoča zanesljivo načrtovanje dimenzioniranja cevi za odvodnjavanje strehe in s tem optimizirano hidravliko.
Funkcije:
- Izometrično načrtovanje sistema Geberit Pluvia za odvodnjavanje strehe
- Izračun v skladu z nacionalnimi standardi ali predpisi Geberit
- Najnovejši predpisi, standardi in integrirani Geberit izdelki
- Samodejni izpis materialnih, hidravličnih in ponudbenih seznamov
- Samodejni izpis izometričnih risb
- CAD uvoz in izvoz (Autodesk® RealDWG®)

Predizdelava odvodnih sistemov
Modul omogoča podrobno načrtovanje in 3D modeliranje cevi in fitingov za odvodne sisteme.
Funkcije:
- Načrtovanje odvodnih sistemov
- Načrtovanje je možno v tlorisu, pogledu od spredaj in 3D
- Samodejni izpis seznamov materialov in rezalnih seznamov za predizdelavo cevi
- Samodejni izpis tlorisa, pogleda od spredaj, 3D in inštalacijskih risb
- CAD uvoz in izvoz (Autodesk® RealDWG®)

Najnovejše posodobitve Geberit ProPlanner
Geberit ProPlanner se nenehno izboljšuje in širi z novimi funkcijami. Dvakrat letno, aprila in oktobra, izdamo novo različico programske opreme.
Izvedite več o najnovejši posodobitvi:

Sistemske zahteve
Pred prenosom programske opreme za načrtovanje preverite, ali so izpolnjene sistemske zahteve:
| Minimalno | Priporočeno | |
|---|---|---|
| Procesor | 1 GHz | 2.5 GHz |
| RAM | 4 GB | 16 GB |
| Prostor za shranjevanje | 4 GB prostega prostora | 6 GB prostega prostora, SSD |
| Grafična kartica | Integrirana grafika | Namenska grafična kartica |
| Zaslon | 1280 x 1024 | 1920 x 1080 |
| Operacijski sistem | Windows 64-bit namizna različica, podprta s strani Microsofta | Najnovejša Windows 64-bit namizna različica |
| Spletne storitve | Internetna povezava E-poštni naslov | Internetna povezava E-poštni naslov |
Z licenco za podjetje lahko namestite in aktivirate Geberit ProPlanner v svojem podjetju poljubno velikokrat. Programska oprema je brezplačna za pripravnike in vse izobraževalne ustanove.
Prosimo, kontaktirajte nas, če želite naročiti licenco.
Usposabljanja za uporabo programske opreme
Če želite v program Geberit ProPlanner uporabljati še učinkovitejše, nudimo vam posebne seminarje kot individualne treninge za uporabo programske opreme.
Za več informacij se obrnite na: alojzij.osvald@geberit.com
POGOSTA VPRAŠANJA O GEBERIT PROPLANNER
Ali lahko izvozimo poročila in risbe iz Geberit ProPlanner?
Da. Programska oprema omogoča izvoz podrobnih poročil, seznamov materialov in risb v različnih formatih za dokumentacijo in distribucijo.
Ali Geberit ProPlanner vsebuje podatkovno bazo Geberit izdelkov?
Da. Geberit ProPlanner omogoča dostop do posodobljene in celovite podatkovne baze Geberit izdelkov, vključno s tehničnimi specifikacijami in podrobnostmi namestitve.
Ali je Geberit ProPlanner primeren tudi za velike projekte?
Da. Programska oprema je zasnovana tako, da je mogoče ustvariti sanitarne projekte vseh velikosti – od manjših stanovanjskih projektov do velikih komercialnih gradbenih projektov.
Napredna orodja za profesionalce v sanitarni tehniki

Geberit BIM Plug-in
Geberit BIM vtičnik za Autodesk® Revit® združuje vsa Geberitova orodja za načrtovanje in izračune ter dostop do BIM vsebin v eni aplikaciji.

Geberit Pro
Inštalaterji imajo lahko sedaj vse, kar ponuja Geberit, na dosegu roke - v žepu na svojem mobilniku. To omogoča aplikacija Geberit Pro za pametne telefone, ki inštalaterjem ponuja veliko koristnih informacij in orodij.

Geberit ProPlanner
Geberit ProPlanner je prilagojen potrebam načrtovanja inštalaterjev in projektantov, ki skrbijo za načrtovanje srednje- do velikih projektov.